Plan du projet

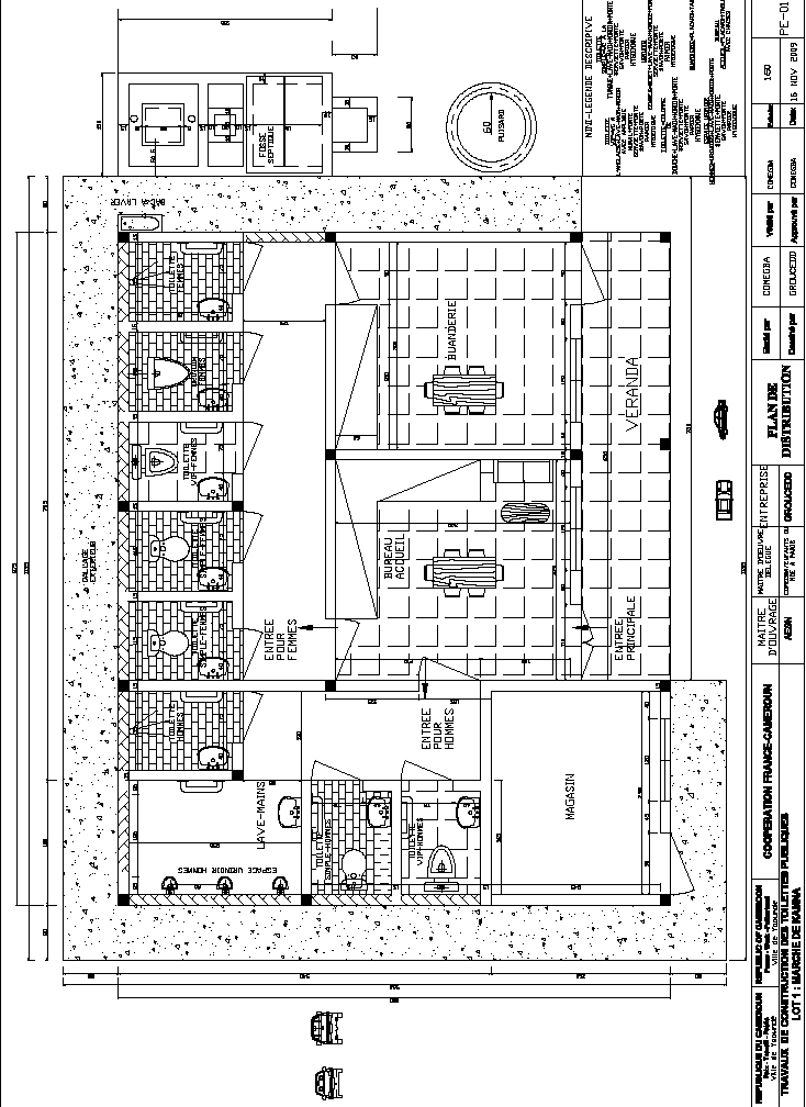
Le 16 Novembre 2009, les plans des futurs toilettes de Kamna ont été établi. C'est la concrétisation du projet de fin 2008. Prochainement, nous verrons le début des travaux.

Voulez-vous nous aider à aller plus loin ?

Chaque don compte pour les projets d'eau et de santé dans le Ndé.

Faire un don